
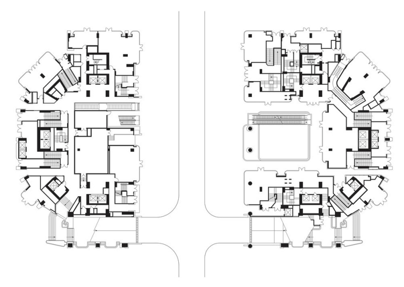
Первые арендаторы переехали в Grand Bayview Qianhai, новое здание, построенное специально для профессионалов, ведущих активный образ жизни, ориентированный на работу. Спроектированные компанией Foster + Partners, две соединённые башни расположены веерообразно, что оптимизирует обзор и дневной свет, обеспечивает максимальную приватность по внешнему радиусу и обеспечивает сосредоточение общественных зон в центре проекта.

Люк Фокс, руководитель студии Foster + Partners, сказал: "Наш дизайн отвечает уникальным потребностям арендаторов, тщательно сочетая приватность и эксклюзивность с чувством общности в непринуждённой обстановке. На каждом этаже башен расположены общие террасы, с которых открываются захватывающие виды, а также обеспечивается естественная вентиляция и контролируемый дневной свет. Пышная зелень растекается по поверхности земли и по обеим башням, позволяя жильцам воссоединиться с природой и обрести душевное равновесие в конце рабочего дня."

Возвышаясь на 180 метров, два многоквартирных дома соединены большим общественным садом, который соединяется с прилегающими зелёными зонами, расширяя возможности застройки на уровне земли. Когда жильцы поднимаются по этажам, зелёные террасы создают общие пространства для отдыха на всех уровнях. Мягкая растительность на террасах создаёт спокойную атмосферу, когда жильцы выходят из лифтов.

Небесные сады башень — это общее пространство для всех жителей. Из них открывается захватывающий вид на город и проводятся разнообразные мероприятия, такие как занятия физкультурой и кураторские мероприятия. Каждый небесный сад представляет собой пространство тройной высоты с затеняющими решётками и насаждениями, создающими более приватную и эксклюзивную атмосферу.


Модульная конструкция позволила производить сборку на заводах, экономя время и обеспечивая контроль качества. Проект позволил снизить выбросы углекислого газа за счёт минимизации использования бетона при строительстве. Вся надстройка, расположенная над землей, изготовлена из легкой стали. Ограждающие конструкции здания являются сборными и по возможности монтировались на месте.


Перри Ип, партнер Foster + Partners, добавил: "Здоровье, благополучие и сообщество являются краеугольными камнями этого уникального проекта, который полностью изменит восприятие городской жизни".

