
Архитектурному бюро BERGER PARKKINEN + было поручено построить новое здание для университета Моцартеум в Кургартене (UMAK) в Зальцбурге. Университет Моцартеум в Кургартене расположен в непосредственной близости от музея Paracelsus Bad & Kurhaus, который также был спроектирован компанией BERGER PARKKINEN + и завершен в 2019 году. Оба здания теперь характеризуют исторический центр Зальцбурга своим ясным и самобытным архитектурным языком.

При проектировании нового здания архитекторы опирались на морфологию прилегающих курортных садов и бывших укреплений. Цель состояла в том, чтобы сделать ощутимым переход от барочной территории дворца Мирабель к Маркус-Ситтикус-Штрассе в вильгельмовском стиле.

Новое здание является частью концепции городского развития, которая сочетает в себе различные структуры – от барокко до эпохи Вильгельма II и 20–го века, — а также образует мост между парками и городскими улицами. С этой целью UMAK был разделён на два здания, которые расположены в шахматном порядке по высоте и размерам, чтобы соответствовать окружающим зданиям.

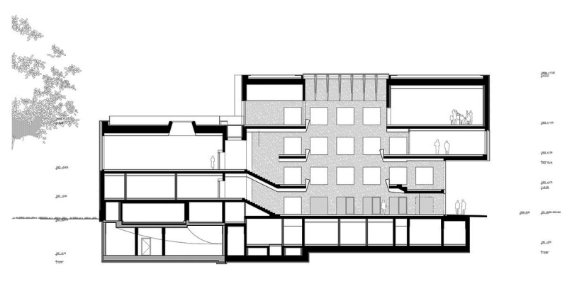
В соответствии с тем, что здание используется в качестве университетского, первый этаж здания открыт для посещения. Сердцем здания является холл с естественными потолочными окнами, который простирается до верхнего этажа. Разделение здания на две части позволяет разместить большие залы и комнаты для занятий с особой высотой потолков. Мощный свес верхних этажей над входной зоной подчёркивает важность площади перед зданием и открывает вид на соседние бани Paracelsus Baths & Spa.

Как и в соседнем здании Paracelsus Bad & Kurhaus, фасад UMAK выполнен с использованием керамических панелей. В то время как здесь использовались открытые ламели, в UMAK используется закрытый керамический фасад с задней вентиляцией.

Этот дизайн учитывает особые требования университета искусств, специализирующегося на музыке: отдельные кабинеты нуждаются в дневном свете и вентиляции, концертные залы — в большом остеклении, а студии — в темноте и тишине. В больших репетиционных залах фиксированные ламели обеспечивают защиту от солнца. Для учебных аудиторий был разработан единый формат окон со встроенной защитой от солнца и бликов. Входная зона и соединение между двумя зданиями щедро застеклены.


Несмотря на высокие технические требования, здание было спроектировано таким образом, чтобы оставаться гибким в использовании. Кроме того, компактная конструкция способствует хорошему энергетическому балансу и долгосрочной устойчивости.

